
一、产品简介
35kV纵旋移开式开关柜,是一种小型化、智能化、节能环保、安全可靠型的开关设备,特别在智能化、节能环保、节省占地面积等方面具有明显的优势。
KYN88-40.5kV 纵旋移开式户内交流金属封闭开关设备,是在KYN88-12纵旋移开式开关设备结构的基础上,对开关柜整体电场进一步优化的、自主研发的、具有自主知识产权的成套配电设备。开创了40.5kV中压开关设备小型化、中置式、智能化、高可靠和经济性设计的新思路新方法。
产品适用于额定电压40.5kV、额定频率50Hz的户内三相交流电力系统,是工矿企业、变电所及发电厂等受、配电系统进行控制、保护、监测的成套配电设备。

此前已取得发明专利的12kV隔离真空断路器及其成套开关设备,通过*********技术鉴定的结论为“原创型国际领先的科技成果”。本系列化项目采用独特的功能复合化的创新设计新理念,开创了40.5kV中压开关设备小型化、中置式、智能化、高可靠和经济性设计的新思路新方法,也赋予了环保型空气绝缘介质开关设备的新前景。

三相极柱结构紧凑,通过极柱旋转,兼具有断路器和隔离开关功能,既是移开式手车,又相当于固定式断路器与隔离开关,改变了传统断路器单一功能的结构布置方式。

双功能掘作集成系统联锁;双功能操作机构以其合理巧妙地结构布置,将隔离与断路器的自身联锁与手车的锁定以及对接地开关的联锁集成布置于一体,不需要其它附加联锁系统,操作与维护以机构为中枢,十分简单方便。实现断路器分合与隔离旋转两个动作的集合;在国内外为首次研究设计了同轴“纵向驱动与横向旋转功能转换副”,实现了本体旋转,机构固定不动的新颖构想。
隔离真空断路器,是以一只涡卷弹簧作为储能元件,即是分闸簧又是合闸簧,出力稳定,合闸功小,寿命长,占用空间小,结构简单。以平面封闭式槽凸轮为驱动元件,把驱动滚轮始终限制在凸轮槽内,可以有效抑制合闸弹跳和分闸过冲,做到了不加设缓冲器,以滑道盘滑块及提升杆组成储能联锁装置,结构巧妙简单,实现了对储能状态的准确、可靠的控制与联锁等。
二、产品主要特点
(1)秉承了纵旋隔离真空断路器的功能复合、纵向布置,隔离断口可视的特点。
(2)纵旋隔离真空断路器及柜内一次导电回路布置简单,电场均匀,绝缘耐压水平高
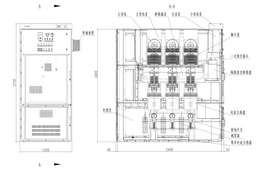
(3)柜内导体相间、对地的空气绝缘距离均大于300mm。柜体宽1200mm,柜体深2400mm,柜体高2600mm。开关设备既可双面维护,又可靠墙安装。
(4)可远程电动操作真空断路器、隔离开关、接地开关,设备动作全景感知可视化监测,方便故障线路快速隔离,非故障线路快速恢复,实时在线温升监测、机械特性监测、状态监测、局放监测、远程计算机监控、手机APP监控功能,满足无人值守变电站,以及“一键顺控”智能电网的要求。

产品结构描述:
(1)开关柜为全金属封闭结构。金属隔板和活门将柜体自上而下分隔为小母线室、智能化仪表室、主母线室、隔离真空断路器室和电缆室,压力释放通道位于柜体后上方。
(2)开关柜主回路采用后、中、前的纵向布置方式。触头盒与主母线、隔离断路器、电流互感器、电缆引线端头和接地开关等主要次元器件从上至下直接联结。
(3)开关柜既可以靠墙安装,又可双面维护,安装维护极为方便。
(4)开关柜充分采用小型化、中置式和复合功能结构件。隔离真空断路器可以纵向旋转和移开,空气绝缘距离均大于300mm!

三、产品性能特点优势
3.1、【散热性能】
KYN88-40.5纵旋式开关柜导电路径短,搭接面少,散热效果好,不存在散热死区。

3.2、【手车灵活性】
KYN88-40.5纵旋移开式开关柜,手车中置式,隔离断口的产生不依靠手车的移动,只是三相极柱旋转便可实现,运动质量小,机械强度和刚度适中,上下触头受力均匀,机械稳定性好。

3.3、【绝缘性能、隔离断口】
KYN88-40.5 纵旋移开式开关柜手车纵向布置,充分利用了柜子纵向深度,相间、对地空气静距离均大于300mm,无需增加绝缘隔板,绝缘性能高,安全可靠。

3.4、【电场性能】
KYN88-40.5纵旋移开式开关柜导电路径T字型布置,上下触头盒距离远,极柱和触头盒都有屏蔽网,电场布置均匀,绝缘耐压水平高。

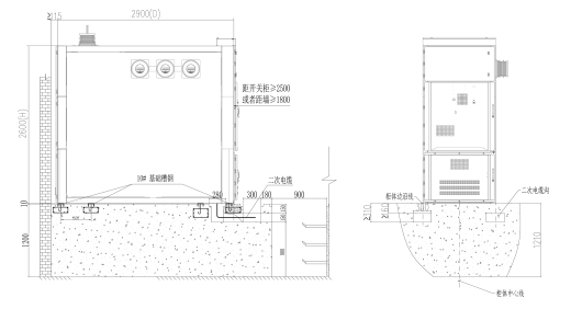
四、产品外形及安装基础示意图
4.1电缆进出线(靠墙安装)

4.2电缆进出线(非靠墙安装)

4.3架空进出线(靠墙安装)

4.4架空进出线(非靠墙安装)

五、设备的主要技术参数

上一篇:XGN2-12型高压开关柜